Проект дома в стиле «Шале»
Конструктивные решения:
Фундамент — монолитный, железобетонный.
Наружные и внутренние несущие стены — пенобетонные блоки
Внутренние перегородки — силикатный кирпич.
Крыша — мансардная, по деревянным стропилам.
Кровля битумная черепица.
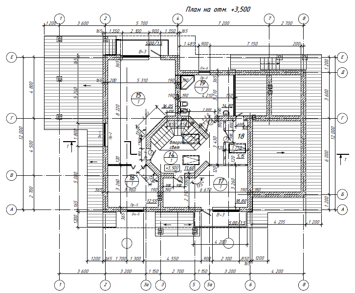
Первый этаж
- Тамбур — 4,25 м2;
- Холл — 17,15 м2;
- Кухня-столовая — 24,35 м2;
- Гостиная — 23,75 м2;
- Спальня — 13,9 м2;
- Санузел — 8,85 м2;
- Коридор — 9,7 м2;
- Санузел — 1,65 м2;
- Игровая — 12,75 м2;
- Спальня — 15,05 м2;
- Гардероб — 2,8 м2;
- Кладовая — 2,8 м2;
- Топочная — 8,35 м2;
Мансардный этаж
- Коридор — 11,6 м2;
- Спальня — 29,1 м2;
- Гардероб — 12,55 м2;
- Кабинет — 16,8 м2;
- Постирочная — 5,15 м2;
- Ванная — 14,9 м2;





