Проект небольшого одноэтажного с мансардой
Первый этаж
- Гостиная — 11,98 м2;
- Кухня-столовая — 13,48 м2;
- Спальня — 9,56 м2;
- Детская — 10,21 м2;
- Ванная — 5,13 м2;
- Топочная — 5,13 м2;
- Тамбур — 0,95 м2.
Второй этаж
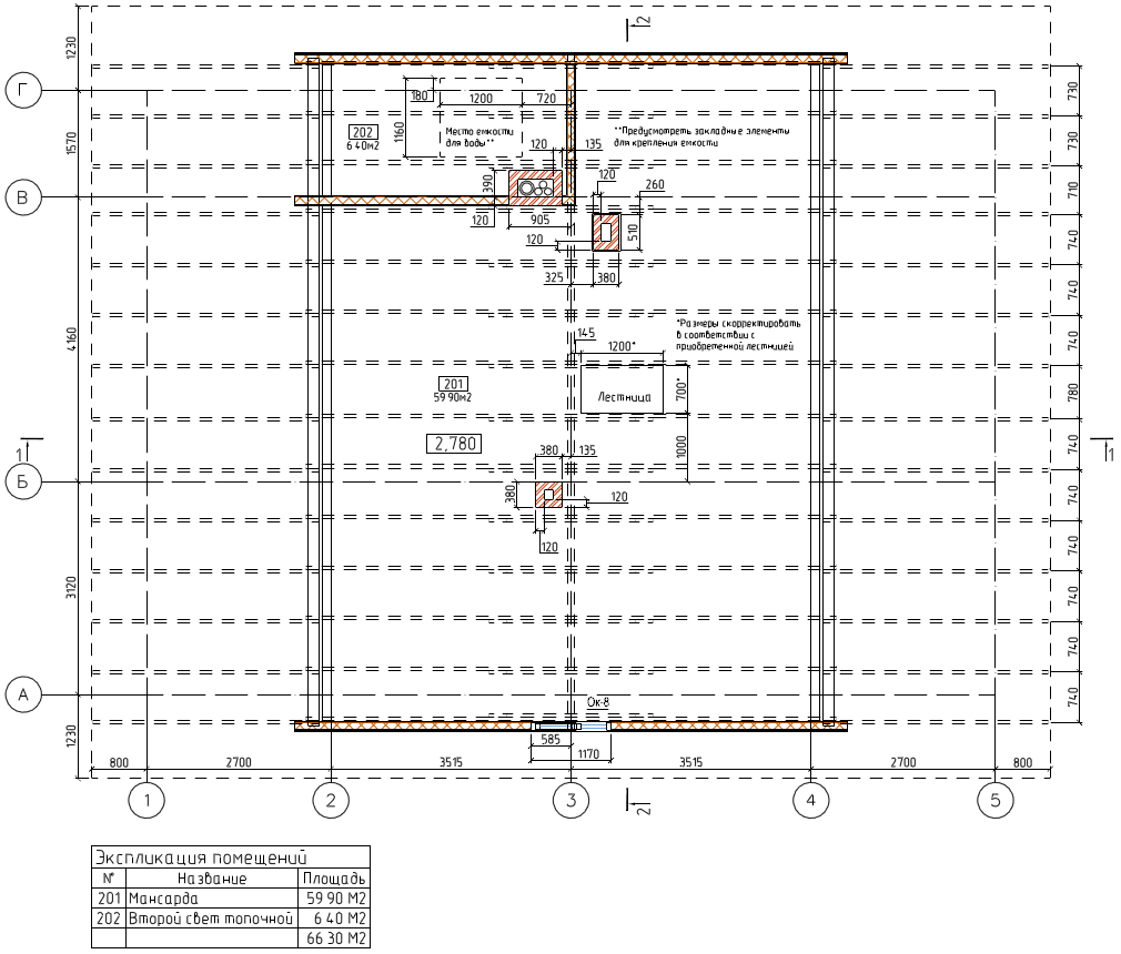
- Мансарда- 59,9 м2;
- Второй свет топочной- 6,4 м2;
1. За отметку 0.000 принята относительная отметка 1-го этажа.
2. Фундаменты запроектированы монолитными железобетонными.
3. Наружные стены здания запроектированы из крупноформатных поризованных блоков.
4. Наружные стены веранд запроектированы с каркасом из деревянного бруса сечением 150×150 мм с утеплением жесткими минераловатными плитами толщиной 150 мм.
5. Внутренние стены запроектированы из глиняного полнотелого кирпича.
6. Несущие элементы перекрытий и покрытия запроектированы из древесины хвойных пород и должны требованиям ГОСТ 8486-86, влажностью не более 20%, не ниже 2 сорта.
7. Основными несущими элементами перекрытий являются деревянные балки из бруса сеч. 100×150 мм.
8. Основными несущими элементами стропильной конструкции покрытия являются треугольные арки с приподнятой затяжкой.
9. Стропила арки выполнены из бруса сеч. 50×150 мм, затяжки из бруса сеч. 50×150 мм. Из плоскости стропила связаны коньковым брусом сеч. 100×150 мм.
10. Поверх стропильной конструкции выполнить обрешетку из бруса сеч. 50×150 мм с шагом 400 мм.
11. Основными элементами подстропильной конструкции являются деревянные стойки сеч. 150×150 мм.
12. Все арматурные работы перед бетонированием монолитных конструкций должны быть предъявлены авторскому надзору или технадзору заказчика с составлением акта на скрытые работы.
13. Минимальная прочность бетона конструкций после снятия опалубки должна быть не менее 70% от проектной.
14. Все бетонные поверхности, соприкасающиеся с грунтом, обмазать горячей битумной мастикой за два раза, до образования сплошной битумной пленки.
15. Горизонтальную гидроизоляцию выполнить из двух слоев гидростеклоизола на отметке -0.200.
16. Все деревянные элементы, соприкасающиеся с каменными, бетонными и металлическими конструкциями обернуть двумя слоями рубероида.
17. Проект предназначен для производства работ в летнее время, при производстве работ в зимнее время руководствоваться соответствующими положениями СНиП 3.03.01-87.
18. Рабочие чертежи разработаны в соответствии с действующими нормами, правилами и стандартами.


